Tropical House in Playa Hermosa de Cobano, Costa Rica
PLAYA HERMOSA RESIDENCE
Nestled in the heart of Costa Rica’s stunning Playa Hermosa de Cobano, this high-end residence represents the perfect fusion of modern architecture and the natural beauty of its surroundings. Set against a backdrop of lush tropical rainforest and breathtaking Pacific Ocean vistas, this tropical house is designed to offer both luxury and harmony with the environment.
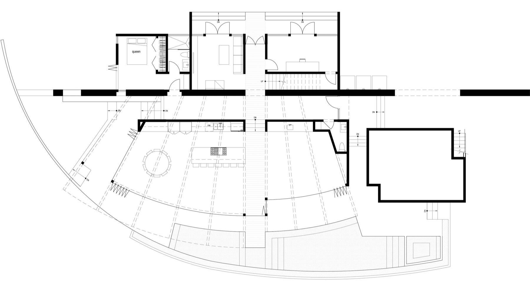
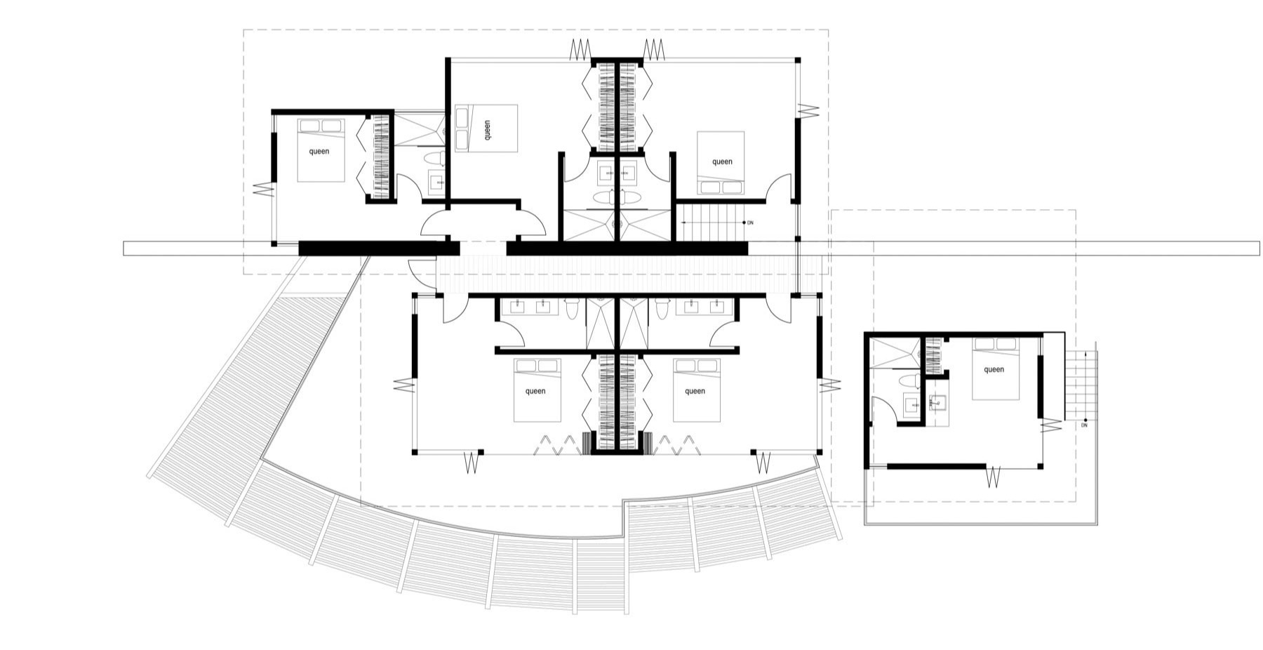
The residence is embraced by a canopy of towering palm trees, which provide both privacy and a sense of connection to the tropical landscape. The architectural design features a striking cantilevering roof with wide, expansive eaves that stretch dramatically outward, providing shade and shelter while emphasizing the flow of the structure into the surrounding environment. A key highlight of the residence is its crescent-shaped pool that seamlessly curves towards the ocean, offering an unparalleled view of the horizon.
The main living room opens directly to the outdoors with a series of foldable doors, inviting the breeze and views of the Pacific Ocean to flow freely into the space. The design is centered around comfort and flexibility, with plush seating that allows residents to relax and enjoy the natural surroundings from inside or out. An airy, open-plan layout connects the indoor spaces, enhancing the sense of continuity between the living areas and the surrounding landscape.
From an aerial perspective, the residence’s impressive form is highlighted by its long, tented roof, which extends from the living room, sheltering the spaces below while creating a sense of connection to the sky and sea. The roof's elegant cantilevered structure is showcased in conceptual sketches, emphasizing its bold, yet delicate design that is both functional and aesthetic.
As you approach the residence, the covered entrance porch invites you into the home, offering a glimpse of the Pacific Ocean through the expansive interior. Large openings in the retaining wall at the rear allow for a striking driveway entrance that leads into the property with ease. Once inside, the open folding door system reveals the home’s true essence – a design that embraces the outdoors while protecting from the elements. The ceiling beams extend past the floor plate, supporting a system of brise soleil that provides natural shading and further enhances the home’s energy efficiency.
This tropical house exemplifies the concept of an open, interconnected living space, allowing the natural beauty of Playa Hermosa de Cobano to become a seamless extension of the home. From the vivid greens of the jungle to the tranquil blues of the Pacific, every aspect of this tropical house is designed to celebrate the best of Costa Rican living.
Learn more about our Modern Home Design.
| LOT SIZE | 6,716 sf |
| PROJECT SIZE | 3,000 sf |
| LOCATION | Playa Hermosa Cóbano, Costa Rica |
| PRINCIPAL | Clay Aurell, AIA |
| PROJECT MANAGER | Eric Behr |
| DESIGN TEAM | Clay Aurell, AIA | Josh Blumer, AIA | Eric Behr |
| 3D RENDERING ARTIST | Atchain |
